Buenaventura Muñoz
(2017)
Housing
FAD Awards 2018, Selected
Catalan Architecture Awards 2019, First Prize
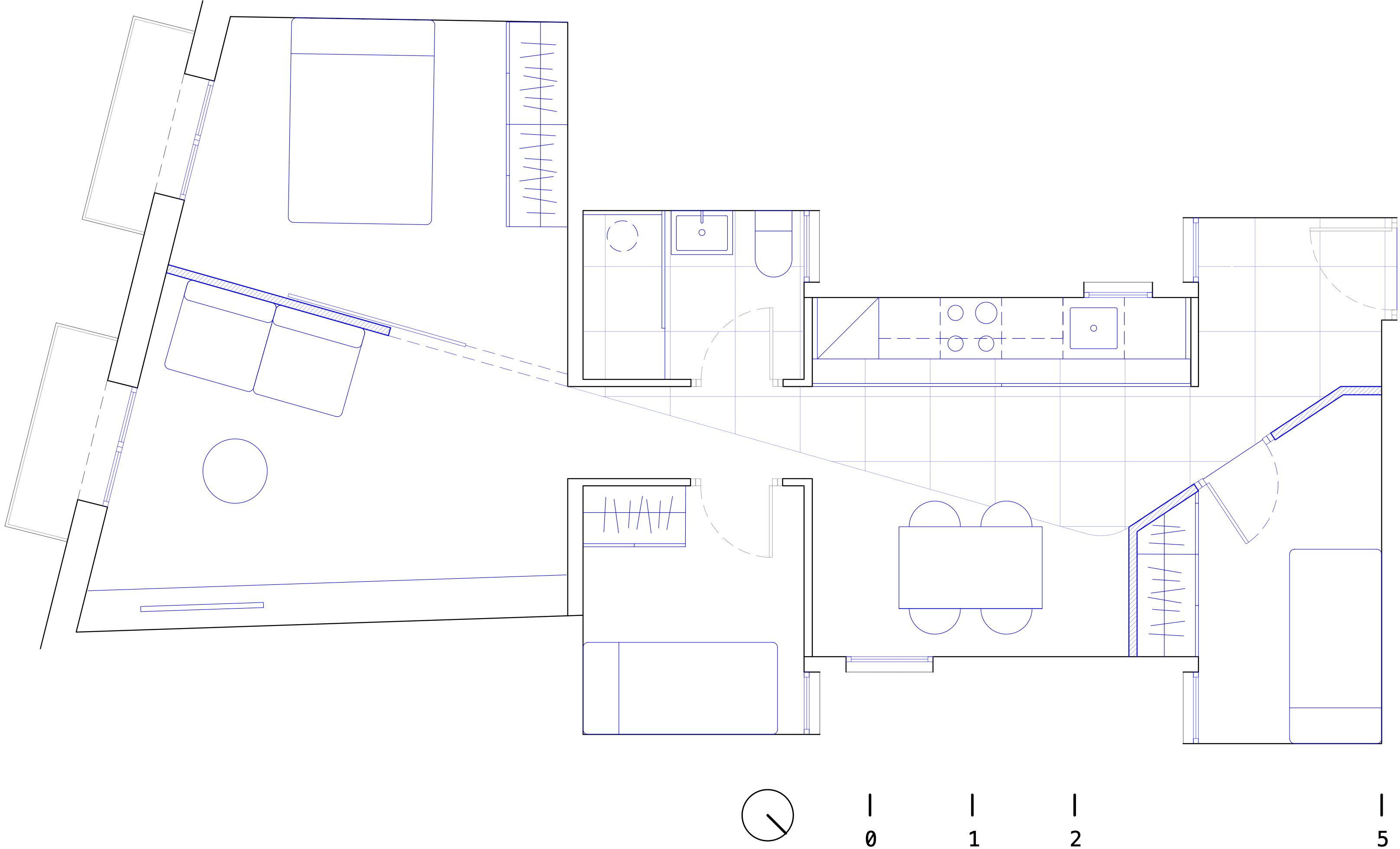
The original perimeter and structural elements were preserved, while dysfunctional partitions were removed to introduce a unifying axis running diagonally through the house. This gesture brought continuity to a previously fragmented space.
The axis defines two distinct zones: the service area (entrance, kitchen, bathroom, and mechanical systems) and the served area (bedrooms, dining, and living rooms). It also informed key design decisions, including ceiling height variations and the use of materials—tiles in service areas and wood in living spaces.
Natural light was enhanced through careful material and color selection. The contrast between old and new elements emphasizes the quiet elegance of early 20th-century Barcelona architecture.











