Pau Alcover
(2024)
Housing
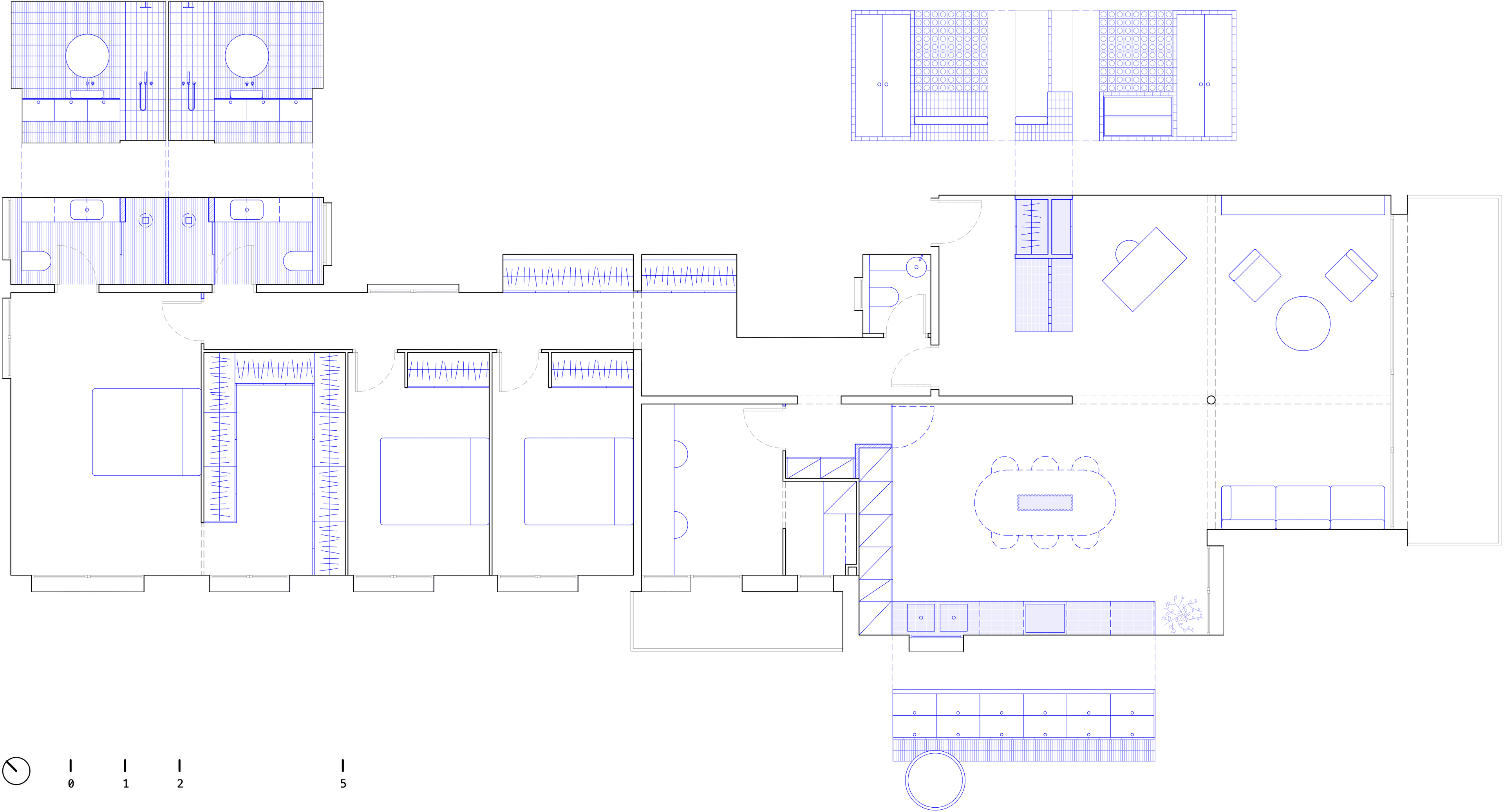
This project, in collaboration with Alessia Schoor and Cubro, presented a unique challenge, as it involved taking over a partially completed intervention. A predefined layout and Merbau tropical wood flooring —selected for its durability— were already in place. This material allowed for a seamless extension of the floor plane from the interior to the terrace, forming the foundation for the design approach.
Our intervention focused on unifying and integrating the spaces through a single element: glazed ceramic. This versatile material was applied across various components, establishing a distinct identity rooted in both local tradition and the everyday needs of the inhabitants.
By reinterpreting Mediterranean construction strategies, the proposal continues the region’s architectural heritage. Here, luxury is defined not by excess, but by durability, simplicity, and coherence.
















Work published in: